Taal Taal

Opstart 2x GEA DairyRobot R9500

Twee GEA R9500 melkrobots voor familie Luttikhuis.

Wij hebben het volgende geleverd en gerealiseerd

Wij wensen de familie Luttikhuis veel arbeidsgemak en melkplezier met hun nieuwe melkrobots.

  • Linker en rechter GEA R9500 melkrobot
  • CowScout gezondheidsmonitoring
  • 300 liter buffervat
  • Nieuwste DairyNet managementsysteem
  • Melkseparatie en selectiepoort

 

Impressie

Twee GEA R9500 melkrobots voor familie Luttikhuis

De familie Luttikhuis besloot dit voorjaar om over te stappen op twee jong gebruikte GEA R9500 melkrobots. De robots stonden oorspronkelijk opgesteld in Italië en zijn door ons opgehaald en naar Nederland gebracht. Na een grondige controle en voorbereiding in onze werkplaats zijn ze klaar gemaakt voor hun nieuwe inzet op het bedrijf.

Meer weten?

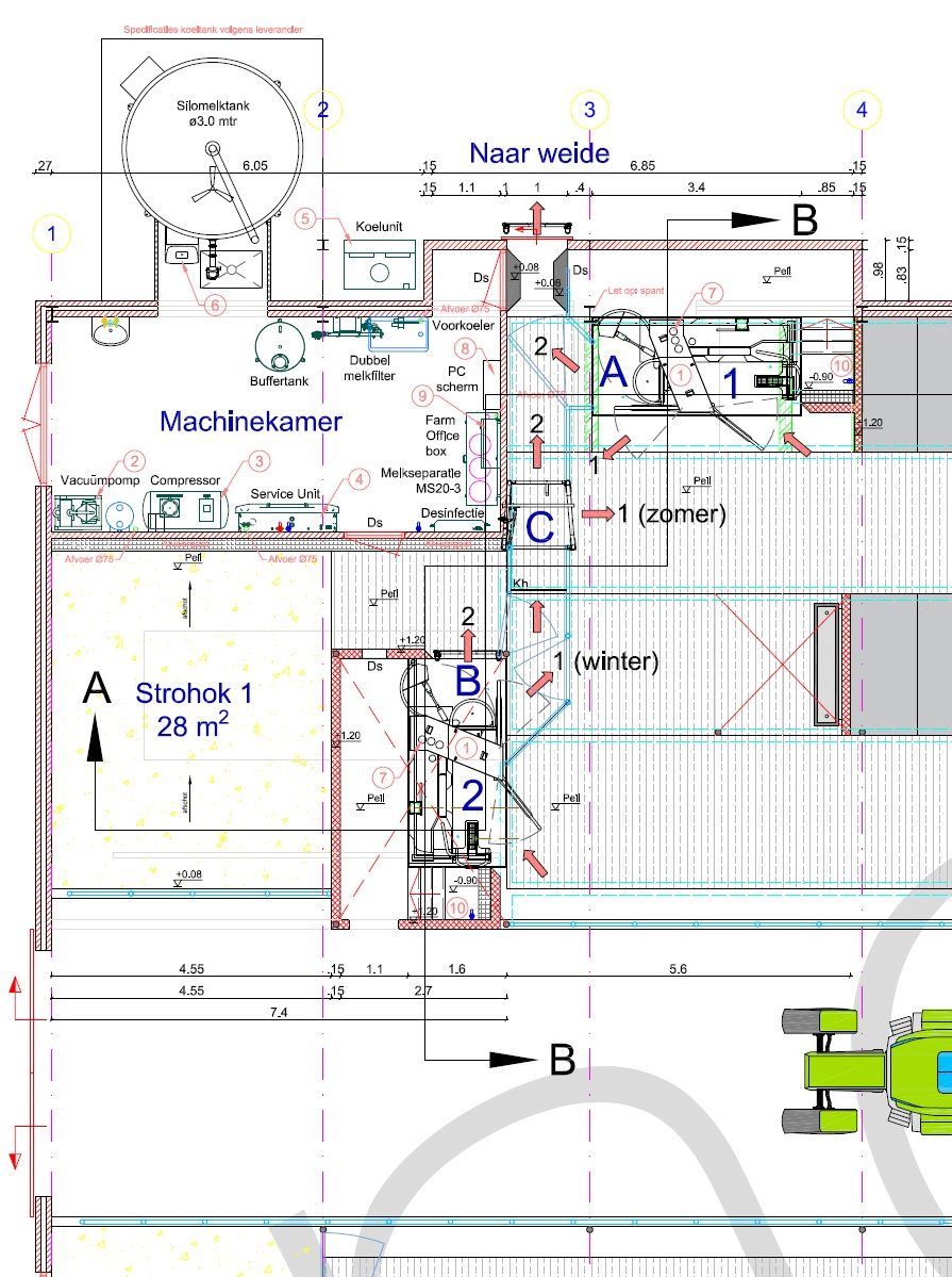
Hoekopstelling

In de bestaande stal was beperkte ruimte beschikbaar voor twee melkrobots. Daarom is gekozen voor een hoekopstelling, zoals vooraf uitgewerkt in het ontwerp. Eén van de robots staat momenteel tijdelijk opgesteld op de roosters bij het voerhek. In de komende periode wordt de melkstal omgebouwd tot strohok en definitieve robotruimte, zodat beide robots straks optimaal geplaatst kunnen worden. Zo is gekozen voor een praktische en toekomstbestendige oplossing binnen de bestaande stal.

Bel voor vrijblijvend advies

Edwin Markink

Verkoopadviseur
Zoekt u een betrouwbare partner voor advies en service in stalinrichting, melktechniek of stalconcepten? Bij Ezendam Veehouderijtechniek denken we met u mee. Bel of mail gerust voor een vrijblijvend gesprek.

Andere projecten

© Ezendam Veehouderijtechniek

Zoek in onze website

  • Zoeken...